Search
Close this search box.

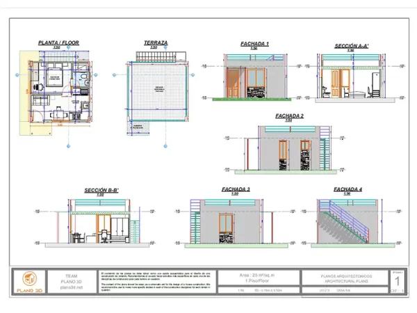
Diseño de CASA 5×5 con Terraza S#1

Características

Esta casa cuenta con un área de terraza para la zona social de los vivientes.

  • Área: 25 m2
  • 1 Habitación
  • 1 Baño
  • 1 Planta
  • Terraza

Descarga de Planos

🔽 Adquiere este diseño en PDF con medidas, contiene: Plantas, Alzados, Fachadas, Áreas

🔽 Adquiere el PACK, que también incluye PDF y archivos editables como: AutoCAD (.dwg), SketchUp (.skp), Archicad (.pla), Revit (.rvt), Imágenes en alta definición.

📐 Estos Planos son de tipo Arquitectónico
📩 ¿Tienes requerimientos especiales? Escríbenos a: [email protected]

📝 Al comprar un PACK recibirás un archivo .txt con el link de descarga (MEGA) ✨ ¡Guárdalo! Accederás a futuras actualizaciones futuras y gratuitas del proyecto.

Comprar Aquí

$ 4,90$ 12,50

Puedes también comprar por PATREON, como opción alternativa a PAYPAL.

Comprar en Patreon

Información de la Casa

🌟 Esta moderna mini casa de 5 x 5 metros (25 m² / 269 ft²) es perfecta para quienes buscan una vivienda compacta, funcional y con estilo. Su característica principal es una terraza completa en la cubierta 🌤️, ideal para relajarse, disfrutar del aire libre o incluso aprovechar como zona social.

Distribuida en una sola planta, esta vivienda incluye 1 habitación 🛏️ con espacio para estudio y clóset, 1 baño 🚿, sala-comedor 🍽️, cocina, zona de ropas y todo lo necesario para vivir cómodo en pocos metros.

Su diseño inteligente la convierte en una excelente opción tanto para vivir solo o en pareja, como para renta vacacional o proyecto urbano. A pesar de su tamaño, es acogedora, eficiente y bien distribuida, sacando el máximo provecho del espacio disponible.

📥 Descarga ahora los planos y archivos completos y empieza a construir una vivienda moderna con terraza propia y estilo minimalista.

Descarga la guía rápida de diseño interior